18117547086
021-52807152

首页 >> 净化工程 >> 医院医疗净化工程 >> DSA手术室净化设计
随着介入医学的飞速发展,利用数字减影血管造影系统(DSA)设备开展的介入治疗已成为 21 世纪临床医学发展的趋势。上海SAREN三仁【国家设计与施工二级资质、净化一级资质证书】净化公司厂家。承接无尘车间装修|净化车间|GMP洁净室设计安装工程|千级万级10万级净化车间装潢改造,化妆品食品医药生物等净化领域权威服务,助力企业洁净工程通过洁净室检测。方案及报价咨询:021-62250299
随着介入医学的飞速发展,利用数字减影血管造影系统(DSA)设备开展的介入治疗已成为 21 世纪临床医学发展的趋势。因其机房建设和设备安装的特殊性,也越来越引起关注。少数医院设立了专门的介入中心,容纳 1-3 台以上的 DSA,包括有多种机型,参照手术室进行管理。多数医院则把DSA设备一般安装在放射科, 由放射科进行管理。
SAREN医院医疗手术室相关文章推荐:
1. 医院输血科实验室建设方案 、设计布局、管理。输血科净化装修施工
SAREN医院医疗手术室洁净设计施工案例:
本文将以郑州大学第一附属医院介入科(简称:郑大一)唯迈医疗极光智能七轴平板血管造影机(简称:唯迈极光)的安装实例,从布局规划、机房装修、设备安装、设备验收使用 4个阶段,系统阐述 DSA介入手术室装修设计建设的原则和重点。
一、DSA手术室装修设计关于设备机房和导管室建设的原则
(1)明确 DSA 设备和导管室的定位
(2)合理选址,因地制宜
(3)科学设计流程
(4)严格规范安装设备;
(5)制定完善的操作、使用制度并严格执行;
(6)注意未来新技术使用的扩展空间。
二、DSA手术室设计关于设备机房的规划选址
1. 明确 DSA 设备和导管室预期的定位。
按功率的大小一般分为大C、中C、小C三种,根据每个医院的需求不同,一般采用中C以上功率的DSA。另外,根据 C 臂数量分为单 C 臂和双 C 臂,其中双 C 臂对机房的要求更高;单 C 臂还有悬吊式和落地式的区别,分别对机房顶面和地面有特殊要求。医院设备部门应根据临床科室的需求有针对性地选择设备。
患者类型的不同对规划也有很大影响。急诊较多,对机房入口通道的通畅性要求较高;重症患者较多,对机房内急救设施的要求较高;设备使用率高, 对机房灭菌消毒效率要求较高;手术类型多,则要求机房面积更大,以便放置不同手术需要的辅助设备。
2. 根据规划合理选址,因地制宜。
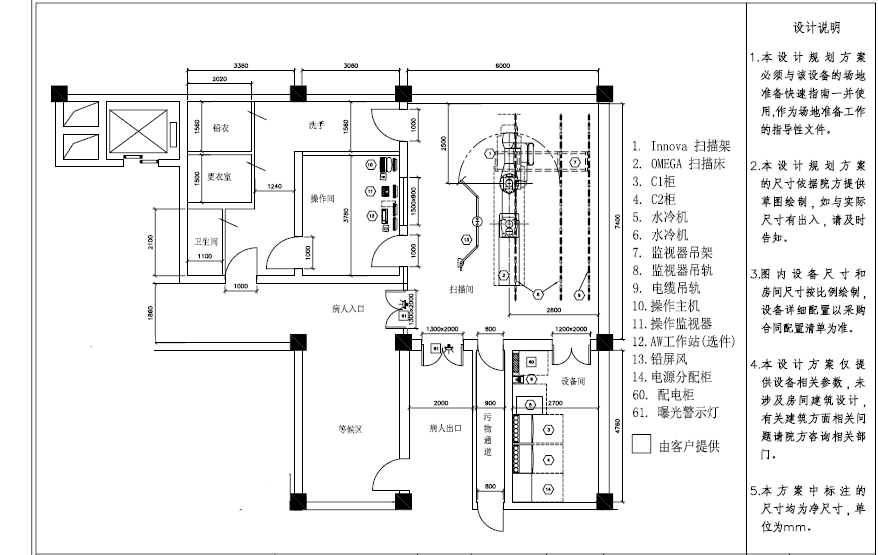
合理地布置导管室的各种功能区域,根据已有房屋结构科学设计流程。一般导管室要求至少有 3 个功能分区:淤放置 DSA手术室设备机架、导管床等主要设备,进行手术和其他操作的手术室以及对设备进行控制的控制室, 是 DSA手术室的主要功能区;于放置高压机柜、图像采集重建机柜、水冷机柜等主要设备的设备间;盂手术更衣、洗手、污洗、家属谈话等手术辅助区域。3 个区域应相对独立,标志清晰。还要根据医院整体设计的要求,分别设置患者、工作人员出入口、污物出口。整个设计应在符合规范的情况下方便检查设备和开展治疗,照顾医、护、患、工勤人员、设备工程师等各方面的需求。图2为根据实际建筑格局制作的 DSA 设备机房及其附属用房设计图。
射科的中部,两边是其他机房,整个用房呈梯形。设备厂家建议的 DSA 设备手术操作间面积为 7500 mm伊6 000 mm,实际安排中,院方尽可能地扩大机房,留出方正的空间,满足设备要求;利用梯形的 2 条斜边设计控制室和设备间;设计准备间,满足了手术缓冲区的要求。更衣室、谈话间和手术洗手间应有足够空间,保证医患通道的独立。特别需要注意的是,为了节省空间,将设备附属机柜放置在操作室内的做法会造成机柜过热等问题,影响设备使用,故应确保设备机柜的独立房间和专用空调。
综上所述,DSA 设备机房的规划选址应做到功能分区明确,保证操作室面积和医患通道的独立,设置手术缓冲区,为 DSA 设备的使用带来工作流程上的便利。
3. 机房建设应注意规范性尧便利性和扩展性
(1)放射设备机房的装修应重点关注放射防护。根据GBZ 130—2013《医用 X 射线诊断放射防护要求》[7],介入 X 线设备机房屏蔽防护铅当量厚度应不小于2 mm。实际工作中,一般采用 3 mm 厚度的铅当量, 以保证工作人员和周围公众的放射安全。操作室对控制医院感染的要求也很高,需要配备动态空气消毒器,同时利用独立空调保证操作室、设备间的温湿度分别满足手术和设备的要求。
(2)DSA 设备是高功率设备,必须严格满足设备的供电要求。一般要求单独的三相五线 380 V 供电,功率、线径、断路器、接地、配电柜均有明确要求,应严格遵循。DSA设备的自重很大,一般要求楼板的承重在 500 kg/m2 以上,如果不符合要求,应做相应加固。悬挂式 C 臂和显示器吊架均需安装吊轨, 需要医院准备槽钢固定架。C 臂的滑动对固定架的水平度要求很高, 例如 GE 要求相邻定位孔之间垂直误差小于依1.5 mm,飞利浦要求垂直误差小于 0.5 mm/m,故固定架的焊接安装一定要由高水平焊工完成, 场地工程师应实时检查施工质量, 出现误差过大及时返工。落地式机架的地面水平度要求也很高,需要 25 mm以上厚度钢板作为加固基础。图 2 DSA 设备机房及其附属用房设计图(单位mm)
(3)机房装修时应充分考虑设备使用的便利性。尽可能地保证DSA 设备手术操作间的面积,就是为了便利设备的使用:心血管介入生理仪、血管内超声、血流储备分数检测仪、射频消融仪等设备,外周血管介入需要配备高压注射器、超声设备、除颤仪、心电图机、微泵等通用设备,这些设备都是放置在操作间内的。为了取用方便,建议将常用导管导丝等耗材及临时起搏器等急救设备也放在操作间备用。便利性的另外一个方面体现在 DSA 及附属设备的配置上,例如:监护仪建议配 2 路有创血压;设备带建议在头侧和术者侧配置 2 套氧气负压接口;考虑到 DSA 设备手术新的发展趋势,建议配 2 副桡动脉穿刺臂托;心血管介入的手术车应长于放射介入的;等等。上述配置是为了保证手术的安全和质量,而医疗安全和质量常常体现在细节的处理上。
(4)机房的扩展性主要体现在接口的预留上。考虑今后有可能增加大功率设备,故需预留部分功率余量;墙面及假天花上方多预留强弱电接口,以备无线设备以及摄像头安装使用。
4. DSA手术室设备安装和验收使用规范
设备安装的优劣能直接体现在设备的使用效率和使用寿命上,良好规范的安装能更好地发挥设备的作用。各大厂商对安装过程一直有规范化的流程, 医院设备部门应全程在场,督促安装工程师严格按流程安装,并根据需要配合工程师安装。需要注意的要点有:各部件悬吊、摆放的水平度控制是否精确, 穿线是否有序和整洁,各种接头的连接是否牢固,术者站立位置的电缆沟是否使用牢固且无弹性的板材覆盖,软件安装是否与合同相符等。
验收时,应由放射科介入医生、技师、心内科医生共同参与验收,确保合同规定的功能完整。特别需要注意的是,除了硬件配置以外,DSA 的各种功能由设备厂家应用工程师与操作技师、医生共同逐项演示确认。放射设备的验收还涉及射线剂量检定,应由第三方检测机构现场检测,确保设备性能以及射线防护等各个指标符合临床和有关部门的规定。
正式开始使用之前,操作技师、医生、护士都应该进行相应培训,相关工勤人员也应进行医院感染、设备清洁等事项的培训。综上即为 DSA 设备安装和导管室建设中的原则和实施中应注意的一些具体问题。根据以上原则建设的导管室,既要符合设备环境要求,又要满足不同介入手术科室的要求,还要方便医生、技师、护士的操作,使其布局合理、设施完整高效、环境整洁明亮,受到医患好评。
DSA 设备对安装的要求非常严格,好的机房设计与安装能够延长设备的使用寿命,提高设备的使用效率,反之,则会影响设备的正常使用;导管室注重流程设计,需要功能齐全又符合各种规定。医院设备部门在设备安装与导管室建设的过程中,应与设备厂家、使用科室充分沟通,精密设计,坚持原则,严控质量,全程参与;要兼顾设备安装的质量与使用的便利性,注意考虑今后扩展的需求,特别是要从细节着手,保证设备长期使用的稳定性。在今后的建设中,可以参照人因工程学的理念,为医、护、患设计更人性化、更舒适的导管手术室。